Residencial Eliseo IIValle de Ángeles
Tu nuevo inicio en un entorno natural y protegido.
El proyecto se encuentra dentro de un circuito cerrado, protegido por muro perimetral y vigilancia 24/7, lo que garantiza un ambiente seguro y controlado para todos los residentes. Caminar, jugar o disfrutar las amenidades sociales se vuelve una experiencia libre de preocupaciones, ideal para quienes buscan paz, privacidad y bienestar.
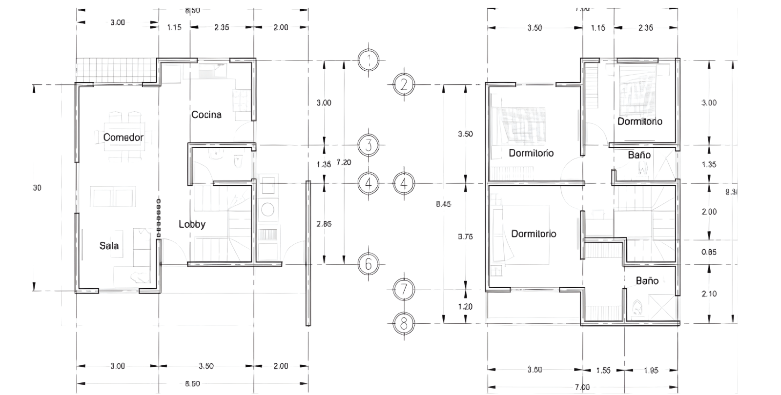
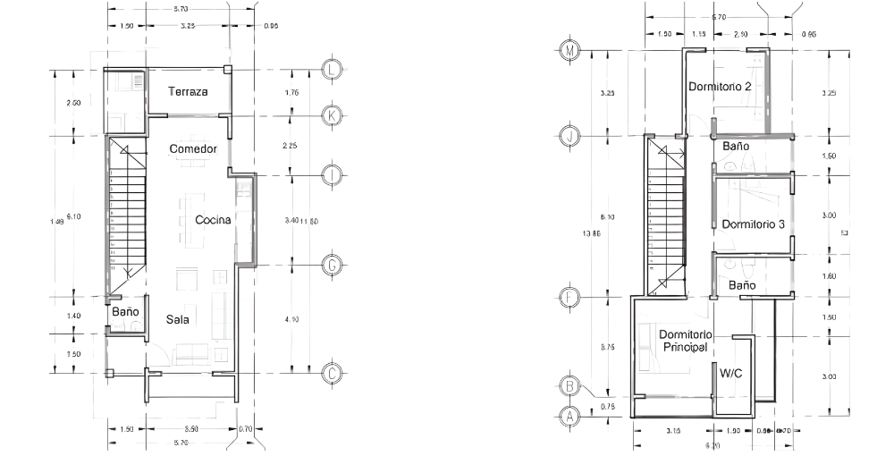
Modelo altamente cotizado con amplitud de terreno como patio. Puedes solicitarlo con loza y preparada para un segundo nivel
Modelo altamente cotizado con amplitud de terreno como patio. Puedes solicitarlo con loza y preparada para un segundo nivel
Modelo altamente cotizado con amplitud de terreno como patio. Puedes solicitarlo con loza y preparada para un segundo nivel
Amenidades & Áreas sociales
Seguridad 24/7
Vive con total tranquilidad gracias a un sistema de vigilancia permanente. Con monitoreo continuo, acceso controlado y personal capacitado, disfrutarás de un entorno seguro donde tú y tu familia pueden sentirse siempre respaldados.
Área Infantil
Espacio colorido para la diversión de los más pequeños. Zona de aprendizaje y descanso, invitando a explorar y disfrutar un entorno para estimular su imaginación
Área de Barbacoa
El área de barbacoa está rodeada de vegetación fresca y el clima agradable que caracteriza la zona. Este espacio ha sido diseñado para crear momentos únicos al aire libre, combinando comodidad y un ambiente relajado
Cotiza ahora
Reserva hoy mismo tu unidad, rellena los datos a continuación








